Achalmstr. 22, 72644 Oberboihingen
8 Wohneinheiten 2 - 4 Zimmerwohnungen 68m² - 106m²
In wunderschöner Lage in Oberboihingen errichten wir ein Mehrfamilienhaus mit Aussicht ins Tal. Hier entstehen acht lichtdurchflutete Zwei- bis Vierzimmerwohnungen zwischen 68m² und 106m². Jede Wohnung erhält eine hochwertige, moderne und dennoch zeitlose Ausstattung. Balkone und Terrassen mit südlicher Ausrichtung schenken schöne Stunden bei jeder Jahreszeit.
Ausstattungsbeschreibung: - großzügiger Wohn- Essbereich - Wohnküche - modernes Tageslichtbad mit Badewanne und Dusche - Gäste – WC - Terrasse / Balkon - Zentralheizung mit Holzpellets - Fußbodenheizung in allen Räumen - hochwertige Bodenbeläge frei wählbar - Badezimmer mit zusätzlichem Heizkörper / Handtuchwärmer - Anschlüsse für Waschmaschine und Kondenstrockner im UG - jede Wohnung besitzt einen Abstellraum im UG
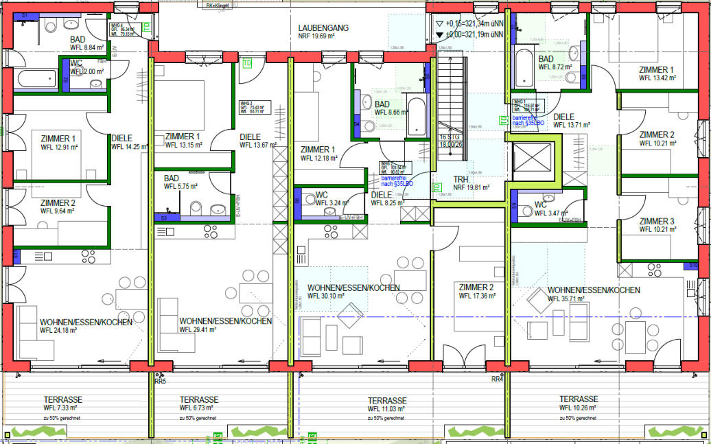
Erdgeschoss
Wohnung 1 4 Zimmer
Wohnung 2 3 Zimmer
Wohnung 3 2 Zimmer
Wohnung 4 3 Zimmer
VERKAUFT
Dachgeschoss
Wohnung 5 4 Zimmer
Wohnung 6 3 Zimmer
Wohnung 7 2 Zimmer
Wohnung 8 3 Zimmer
Eine visualisierte Beispieldarstellung unserer Wohneinheiten sehen sie >hier<.
VERKAUFT
VERKAUFT
VERKAUFT
VERKAUFT
VERKAUFT
Achalmstr. 22, 72644 Oberboihingen
8 Wohneinheiten , 2 - 4 Zimmerwohnungen, 68m² - 106m²
In wunderschöner Lage in Oberboihingen errichten wir ein Mehrfamilienhaus mit Aussicht ins Tal. Hier entstehen acht lichtdurchflutete Zwei- bis Vierzimmerwohnungen zwischen 68m² und 106m². Jede Wohnung erhält eine hochwertige, moderne und dennoch zeitlose Ausstattung. Balkone und Terrassen mit südlicher Ausrichtung schenken schöne Stunden bei jeder Jahreszeit.
Ausstattungsbeschreibung: - großzügiger Wohn- Essbereich - Wohnküche - modernes Tageslichtbad mit Badewanne und Dusche - Gäste – WC - Terrasse / Balkon - Zentralheizung mit Holzpellets - Fußbodenheizung in allen Räumen - hochwertige Bodenbeläge frei wählbar - Badezimmer mit zusätzlichem Handtuchheizkörper - Anschlüsse für Waschmaschine und Kondenstrockner im UG - jede Wohnung besitzt einen Abstellraum im UG
Eine visualisierte Beispieldarstellung unserer Wohneinheiten sehen sie >hier<.
Ausstattungsbeispiele
Aussicht
Erdgeschoss
Wohnung 1 4 Zimmer
Wohnung 3 2 Zimmer
Wohnung 2 3 Zimmer
Wohnung 4 3 Zimmer
Wohnung 8 3 Zimmer
Wohnung 7 2 Zimmer
Wohnung 6 3 Zimmer
Wohnung 5 4 Zimmer