Quartier Bahnhofstraße, 72644 Oberboihingen
12 Wohneinheiten, 1 - 4 Zimmerwohnungen, ca. 43m² - 97m² 2 Gewerbeflächen, mit Nebenräume, ca. 125m² und 98m²
Im wunderschönen Zentrum Oberboihingens errichten wir ein Mehrfamilienhaus mit zwei Gewerbeflächen. Hier entstehen neun stufenlose Wohneinheiten und drei Maisonettewohnungen zwischen 43m² und 98m². Jede Wohnung erhält eine hochwertige, moderne und dennoch zeitlose Ausstattung.
Ausstattungsbeschreibung der Wohneinheiten: - großzügiger Wohn- Essbereich - Wohnküche - modernes Tageslichtbad mit Badewanne und Dusche - Gäste – WC - Terrasse / Balkon - Zentralheizung mit Holzpellets - Fußbodenheizung in allen Räumen - hochwertige Bodenbeläge frei wählbar - Badezimmer mit zusätzlichem Handtuchheizkörper - Anschlüsse für Waschmaschine und Kondenstrockner in den Wohneinheiten - jede Wohnung besitzt einen Abstellraum im UG
Erdgeschoss
Gewerbefläche 2
Gewerbefläche 1
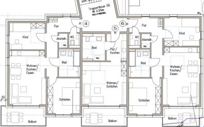
1. Obergeschoss
Wohnung 1 3 Zimmer
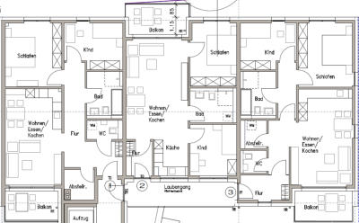
Wohnung 2 3 Zimmer
Wohnung 3 3 Zimmer
1. Dachgeschoss / Maisonettewohnungen
Wohnung 7 4 Zimmer
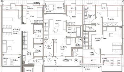
Wohnung 8 3 Zimmer
Wohnung 9 3 Zimmer
Wohnung 10 3 Zimmer
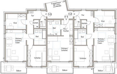
Wohnung 11 1 Zimmer
Wohnung 12 3 Zimmer
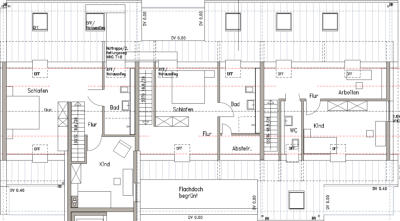
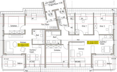
1. Dachgeschoss
2. Dachgeschoss
Wohnung 13 2 Zimmer
Wohnung 14 4 Zimmer
1. Obergeschoss
Wohnung 4 3 Zimmer
Wohnung 5 1 Zimmer
Wohnung 6 3 Zimmer